土間コンクリートと角柱門柱でオーソドックスな新築ベーシック オープン外構
プラン内容 No.3333
※データは見積当時のものです
- 見積参考価格
- 210 万円
- 工事面積
- 152m 2
- 工事種別
- 新築外構
- 地形
- 四角
- 方位
- 南東
- 車の台数
- 3台以上
- 登録日
- 2025-08-02
イメージパース・図面






コメント
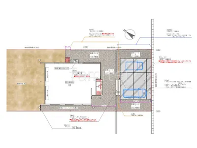
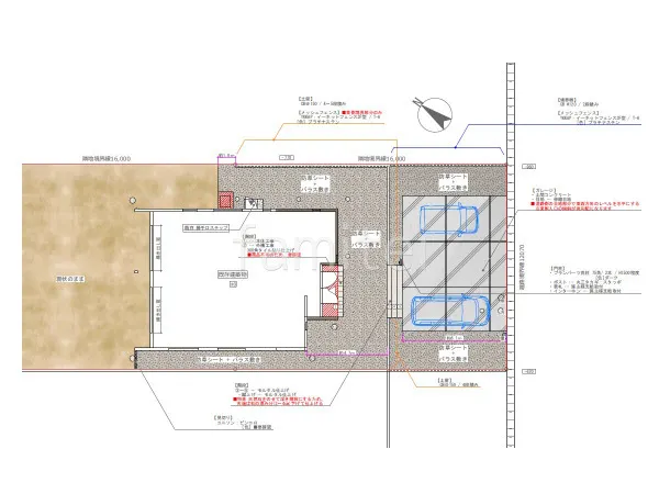
駐車スペース全体には土間コンクリートを打設し、フラットな土間が日常の使い勝手を向上し、車の乗り降りがしやすい快適なスペースを作りました。 玄関まわりには角柱門柱を設置し、シンプルながらも木目の温かみがあり、利便性の高い門まわりに仕上げました。 建物周囲には防草シートと砂利を敷き、雑草の発生を抑えつつ排水性を確保したメンテナンスフリーな空間に。






