奥行きのあるカーポートで新築シンプル オープン外構
プラン内容 No.3332
※データは見積当時のものです
- 見積参考価格
- 236 万円
- 工事面積
- 87m 2
- 工事種別
- リフォーム外構
- 地形
- 四角
- 方位
- 北
- 車の台数
- 2台
- 登録日
- 2025-08-02
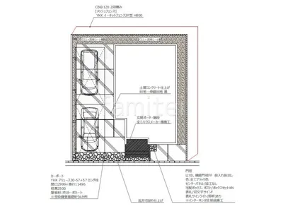
イメージパース・図面




コメント
奥行きのある駐車スペースに縦2台用カーポート YKKAP アリュースを設置することで、車を雨風から保護します。 アプローチには白い乱形石を採用し、明るく上質な印象を演出し、柔らかな雰囲気に仕上げました。 門まわりには宅配ボックス付き機能門柱 LIXIL FFを設置し、不在時でも荷物を受け取りれる安心の玄関スペースに。




